Т-33б Клапан регулирующий поворотный
В заказИзготовление по ТУ 3740-002-15365247-2004
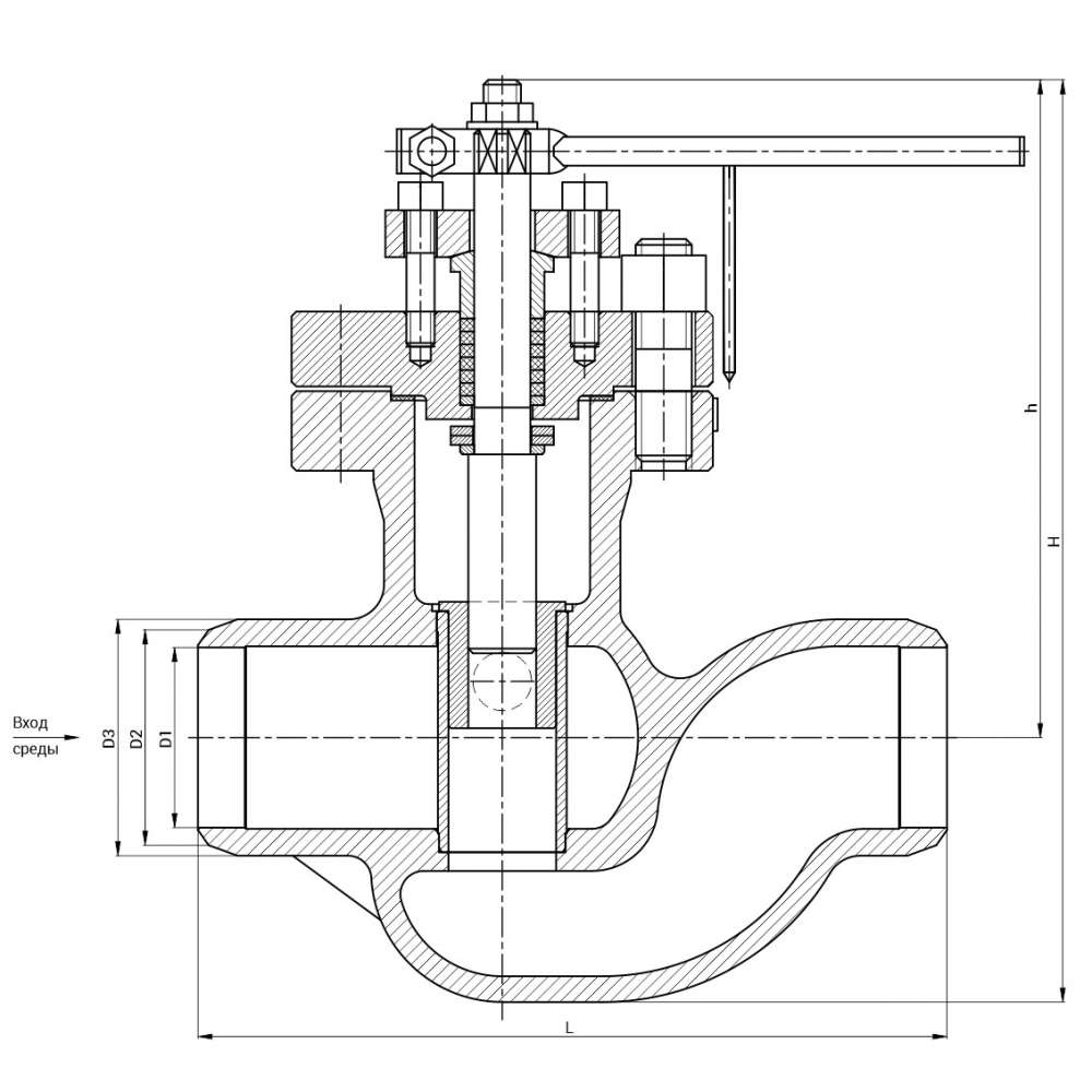
| L, мм: | 225 |
| h, мм: | 261 |
| D3, мм: | 68 |
| D2, мм: | 60 |
| D1, мм: | 50 |
| H, мм: | 343 |
| DN, мм | РN, МПа | Tmax среды, ºC | Материал корп., сталь | Раб. среда | Макс. Kv, м³/ч | Mkr., H·m, не более | μ, не менее | Nоб. Полн. хода | Способ управления | N, кВт | t хода, с. | Масса с эл.прив., кг | Масса без эл. прив., кг |
| 50 | 10 | 300 | 25Л | Вода | 10,64 | 100 | 0,6 | 0,25 | МЭО-250/25-0,25У-99К | 0,25 | 25 | 52,5 | 25 |
Назначение
Клапаны предназначены для регулирования расхода рабочей среды (воды) с температурой до 300 °С.
Технические характеристики
Присоединение к трубопроводу: под сварку.
Установочное положение: на горизонтальных и вертикальных участках трубопровода, в местах удобных для обслуживания.
Направление подачи рабочей среды: устанавливается по стрелке, нанесенной на корпусе.
Климатическое исполнение: У, УХЛ, ХЛ, Т по ГОСТ 15150-69.
Категория размещения: 1, 2, 3 по ГОСТ 15150-69.
Оснащение комплектными шкафами управления (КШУ).
Управление
Управление регулирующими клапанами осуществляется при помощи электропривода типа МЭО производства «АБС автоматизация», г.Чебоксары.
Изменение площади проходного сечения золотника в зависимости от угла поворота рычага приведено на графиках.

