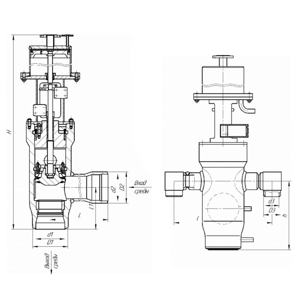
Т-364бсм Клапан впускной (ПВД)
В заказ| D1, мм: | 273 |
| d2, мм: | 271 |
| D2, мм: | 325 |
| d3, мм: | 161 |
| d1, мм: | 226 |
| H, мм: | 1515 |
| h, мм: | 537 |
| L1, мм: | 322 |
| L, мм: | 602 |
| l, мм: | 830 |
| D3, мм: | 194 |
| DN, мм | РN, МПа | Tmax среды, ºC | Материал корп., сталь | Раб. среда | Давление конденсата в гидроприводе Pк, МПа | Условная пропускная способность Kv, м³/ч | Время срабатывания, сек | Масса изделия, кг |
| 250 | 25 | 250 | 20 | Питательная вода | 1,0…2,5 | 425 | 0,5…1,0 | 722 |
Сведения о применяемых нормативных документах
Технические условия ТУ 3740-002-15365247-2004
Назначение
Клапаны впускные применяются для комплектования подогревателей высокого давления (ПВД), применяются в качестве защитного устройства ПВД, предотвращающего попадание воды в турбину в случае разрыва труб подогревателей. Это достигается отключением и байпасированием подогревателей по питательной воде.
Впускные клапаны служат для включения группы ПВД на регенеративный подогрев питательной воды котлоагрегата или для отключения их и перепуска воды по байпасам в аварийных случаях переполнения конденсатом парового пространства корпуса ПВД.
Параметры эксплуатации
Установочное положение клапана: крышкой вверх на трубопроводах питательной воды со стороны входа в ПВД. Вход рабочей среды в клапан – через горизонтальный патрубок, выход среды – вниз через вертикальный патрубок или через штуцеры, расположенные сбоку.
Управление: с помощью гидропривода.
В качестве управляющей жидкости используется конденсат давлением от 1,0 до 2,0 Мпа, поступающий к клапану от конденсатных насосов или другой магистрали.
Время срабатывания клапана: от 1 до 2 с.
При нормальном режиме работы тарелка расположена вверху и прижата к верхнему седлу клапана, обеспечивая выход воды через нижний патрубок. При срабатывании клапана гидропривод воздействует на тарелку, опуская её вниз до посадки на нижнее седло. При этом подача воды в ПВД прекращается. Через боковые штуцеры она поступает, минуя ПВД, в питательный трубопровод к котлоагрегату.
Присоединение к трубопроводу: под сварку.
Герметичность затвора: по классу А ГОСТ 9544-2015.
Климатическое исполнение: У, УХЛ, Т по ГОСТ 15150-69.
Категория размещения: 1, 2, 3 по ГОСТ 15150-69.
Допустимое использование
Изделия, рассчитанные на предельное давление в соответствии с ГОСТ 356-80, допускают применение их на рабочих параметрах в диапазоне:
- на PN 20 МПа – от 20 МПа, 200 °С до 7,2 МПа, 455 °С;
- на PN 25 МПа – от 25 МПа, 200 °С до 9 МПа, 455 °С.

